FER

Vertical building expansion

Client
FPSG - Fondation Professionnelle et Sociale de Genève
Architect
Giorgio Bello
Location
Genève
Year
2011 - 2014

Overview
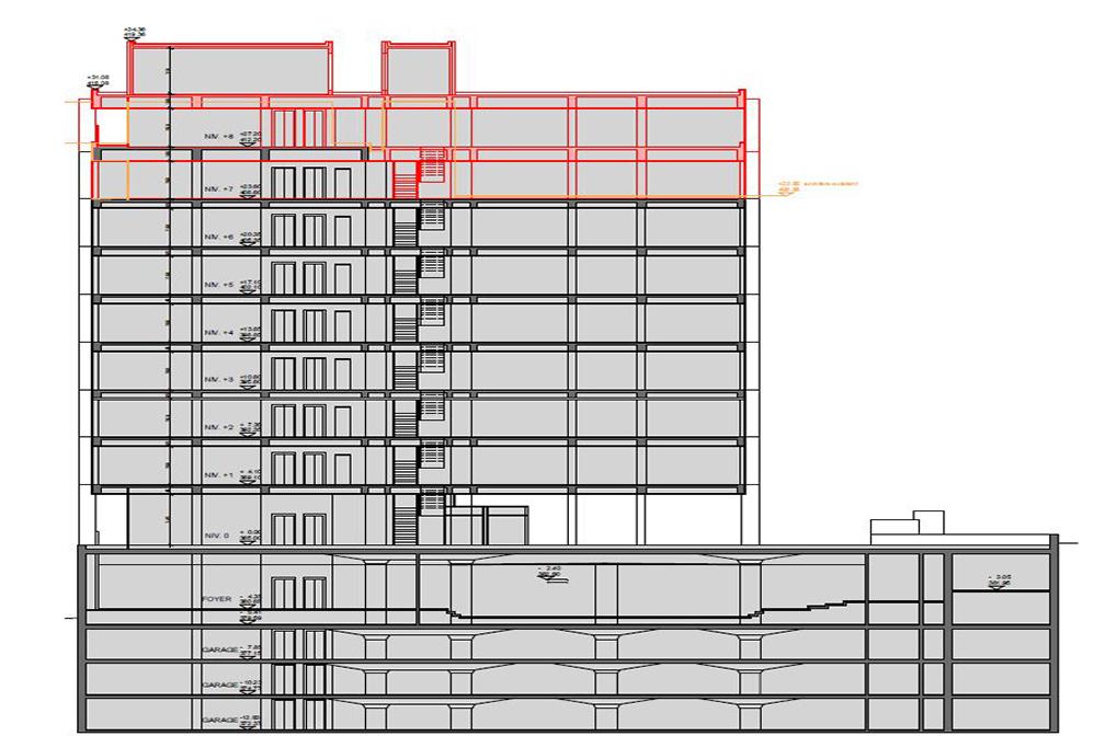
Vertical building expansion of the existing FER building by 2 levels on a unit and 1 level on the rest of the building in order to have 8 floors everywhere.

Stakes
This expansion preserves the original architectural expression as well as its integration in the neighbourhood of the Quai du Seujet.

Structure
The whole structure is made of reinforced concrete and the superstructure is composed by grid metal beams linked by a thin slab resting on 8 pillars around each of the 4 square units each side measuring 13.25 metres.

Environment
Our office was also appointed to monitor the asbestos removal of the screed and the waterproofing of the terrace. Because the surface on the 7th floor of the building covers up to 200 m2 these works were carried out in 4 confinement zones.

ORIGIN OF THE PROJECT
In the sixties, our office worked on the original construction of this building, collaborating alongside the architects Jean-Pierre Dom and François Maurice (see our page 60 years).

  • FER_didier_rossel_cmjn_HD.jpg