UNOG - The United Nations Office at Geneva

Sewerage network construction

Client
UNOG - The United Nations Office at Geneva
Location
Geneva
Year
2007 - 2013
1st step
2007 - 2008
2nd step
2011 - 2012
3rd step
2013 - 2014

Overview
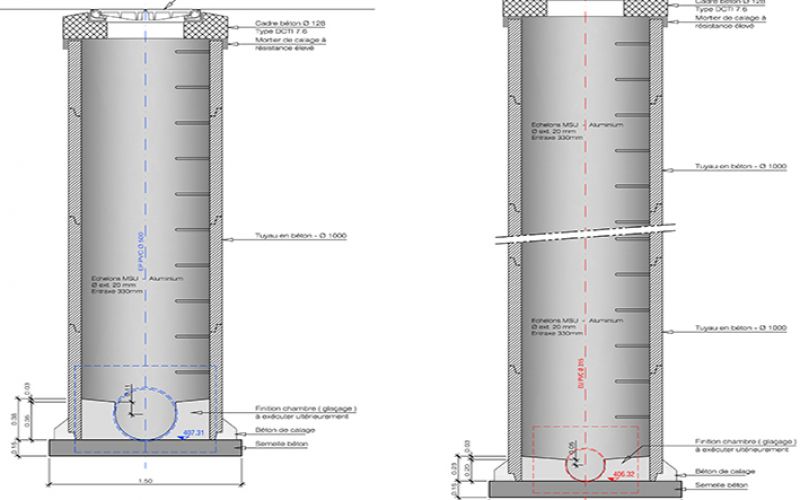
Study and construction of the sewerage network of the UNOG site in Geneva. Our office has been in charge of the complete project, from the pre-project to the execution phase, providing civil engineering services as a specialised agent in support of the work execution management carried out by UNOG services.

Works

  • Study of the global concept of the onsite sewage disposal 
  • Tracking and identification of existing sewage pipes
  • Sizing of the main networks
  • Client support during the tender process phase, developed by the specific UNOG department
  • Development of execution details and plans in accordance with the final execution
  • Client technical support during the execution phase
  • DSCN0009_1200x900.jpg
  • DSCN0066_1200x900.jpg
  • planCour.JPG